Westgate 2 bedroom flat

Ground Floor Flat Built in 2008

This property is currently let

  • Ground floor flat
  • 2 bedrooms
  • 2 bathrooms - one en-suite
  • Spacious lounge
  • Kitchen with built-in dishwasher, washing machine, fridge/freezer, double oven, hob
  • Gas central heating
  • Unfurnished
  • Sorry no pets and no smoking
  • Car parking
  • Close to Maidenhead town centre
  • Adjacent to local shops and post office
  • Approx £1000 per calendar month

Video

Here is a video showing a walk-through of the 2-bedroom flat, showing every room and all the kitchen facilities.

Communal Entrance Porch

Entrance porch with security phone system leading to:

Communal Entrance Hall

With communal door to rear and car park, stairs to upstairs landings.

Private Entrance Door

With spy hole leading to:

Private Entrance Hall 

With radiator, double glazed rear aspect window, security entry phone system, airing cupboard housing Megaflo hot water tank with slatted shelving, adjoining walk-in storage cupboard.

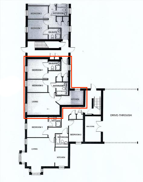
Master Bedroom 10' 9" x 10' 7" (3.28m x 3.23m)

With radiator, double glazed front aspect window, TV point, telephone point, wardrobe, door to:

En-Suite Shower Room

White suite comprising shower cubicle with fully tiled splashbacks, shower mixer and glazed byfolding shower screen and doors, pedestal wash hand basin, close coupled toilet, matching tiled splashbacks, chrome heated towel ladder, ceramic tiled floor, shaver point, extractor fan, inset downlighters.

Bedroom 2 10' 9" x 6' 9" (3.28m x 2.06m)

With radiator, double glazed front aspect window, TV point. Wardrobe.

Family Bathroom

White suite comprising panel enclosed bath with mixer shower attachment, fully tiled splashbacks surrounding and glazed shower screen, pedestal wash hand basin, close coupled toilet, matching tiled splashbacks, ceramic tiled floor, chrome heated towel ladder, shaver point, extractor fan, inset downlighters.

Living Room 17' x 11' 10" max (5.18m x 3.61m max)

A delightful room with sealed unit double glazed front aspect windows, two radiators, TV point, telephone point, door to:

Kitchen 14' 3" x 7' 9" max (4.34m x 2.36m max)

Well fitted with roll top work surfaces, inset one and a half bowl stainless steel sink unit with mixer taps and drainer, range of cream fronted units with drawers, cupboards under and matching wall cupboards over, tiled splashbacks surrounding, built-in four ring gas hob with concealed extractor over and electric fan-assisted double oven under, integrated tall fridge and freezer, integrated washing machine and integrated dishwasher, vinyl cushion flooring, radiator, sealed unit double glazed side aspect window, boiler cupboard housing Gloworm gas fired boiler for domestic hot water and heating.

Communal Gardens

To the front of the property with areas of lawns, shrubs, evergreens and conifers.

Cycle Storage

There is a useful communal bicycle/storage shed and an enclosed bin/storage area.

Car Parking

One allocated parking space to the rear directly outside flat, with additional visitor parking spaces.

Directions

From Maidenhead town centre take the A4 Bath Road West towards Reading and after about 1.5 miles and immediately after the Alfa Romeo garage turn right into Highway Avenue. Westgate will be found immediately on your left hand side with the entrance to the car park under the archway.

Postcode

The postcode of the property is SL6 5EE.

Local Authority

The local authoriy is the Royal Borough of Windsor and Maidenhead.

Council Tax

The property is in band C.

Location Map

Click here for a location map (opens new window).

Availability

Normally let on an Assured Shorthold Tenancy, unfurnished, for a minimum 6-months.

Sorry - no pets and no smoking.

Get in Touch

This property is currently let

Please contact us to arrange a viewing through our agents.